Biomass Cooking Stoves

This page exists to help people involved in the development of a better stove for cooking with biomass fuels in developing regions.A discusion of this issue is occurring on the Stoves Mailing List. Link to Archive

List Moderators are Ron Larson (ronallarson@qwest.net) and
Elsen L. Karstad (elk@wananchi.com www.chardust.com)

If you have relevant information or pictures please send it to CREST, so we can post it through this site, and share it with other interested folks.

Interesting Links

Various Links By Country


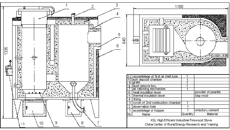
NEW

Select a photo to link to additional information.

Lanny Henson

lanny@roman.net

October 21, 2002

Lanny's Simple Camp Fire Stove
Arnt Karlsen

arnt@c2i.net

Arnt's Gasifier
José Fernando Martirena Hernández

f.martirena@enet.cu

October 8, 2002

Solid Fuel Block from Waste Biomass in Cuba

Report March 2002 (800k pdf)

Presentation July 2002 (600k pdf)

Jan Cap

capjan@vol.cz

October 8 2002

Wood gas cooker from China
Crispin

crispin@newdawn.sz

September 6 2002

BASINTUTHU STOVE TEST

The Basintuthu Stove (pronounced baa-sin-doo-too, "makes fire from smoke") is a stove designed to burn small diameter wood and twigs efficiently, combining preheated primary air, preheated secondary air and secondary combustion. This means that nearly all the available heat contained within the biomass fuel can be liberated. It also means there there is less smoke, particulate matter and Carbon Monoxide (CO) emitted, compared with most other stoves and open fires.

Matthew Owen

owen@africaonline.co.ke

August 2002

Making Bamboo Charcoal in Lampang
Andrew Heggie

andrew.heggie@dtn.ntl.com

June 2002

Using Excess Air: Experiments With A Steam Aspirator

Emma George

GTZ Uganda

emma@george.as

July 18 2002
Aug 17 2002

Improved 3 Stone Stove
Dean Still

dstill@epud.net

June 17 2002

with Baldwin sheet metal skirt around partially submerged pot. Dead air space helps to isolate thermal mass from the fire. 29% efficient. This simple Rocket stove was fabricated and developed with help from Damon Ogle and Jim Wilmes, students at a Aprovecho stove class, beginning June 10, 2002.
Prototype Ecuadorian earthen stove
Dean Still

dstill@epud.net

June 6 2002

Pete Cooking
Rogeria Miranda

rmiranda@sdnnic.org.ni

PROLEÑA

May 6 2002

Prolena's Ecostove Uganda Stove

PROLEÑA's promotion of Ecostove in a public fair in Nicaragua under a USAID project

PROLEÑA's Ecostove factory in Managua, Nicaragua with capacity to produce 100 Ecostoves per week.
Dean Still

dstill@epud.net

April 27 2002

"Rocket" style submerged pot Uganda Stove

Uganda Stove
Richard Stanley

rstanley@legacyfound.org

May 2002

Legacy Foundation activities in technology innovation:
micro-enterprise-based briquetting technology

Elbow View
Dean Still

dstill@epud.net

"Rocket" style Cacao Bean Dryer

USAID/Winrock
ACODEMUBE, Nicaragua

March 2002

Drying Beans Elbow View
Dean Still

dstill@epud.net

Rocket stove with griddle designed with DonO'Neal for HELPS International in Guatemala

March 2002

HELPS Rocket Stove Helps Guatemala
Peter Verhaart

pverhaart@mail.optusnet.com.au

Downdraft Barbeque
Feb 5, 2002
Water Boiler Tests
March 6, 2002

Jeff Forsell

JEFF.FORSSELL@ssvh.se

Please criticize this plan for a Rocket elbow type stove
(See description)

2/04/02

Tom Reed

Reedtb2@cs.com

I'm attaching a picture of our development model of the woodgas campstove gas flames.

2/02/2002

See Also:

Biomass Energy Foundation

Paul S. Anderson

psanders@ilstu.edu

Juntos Stove Development

January 2002

February 2002

Dean Still

dstill@epud.net

Lanny's Rocket Wok

January 27, 2002
Dean Still

Richard Henya's Rocket Stove, Kenya 01/26/2002
Stove liner
Complete Stove

 


NEWS

Stephen Gitonga The Energy Ladder October 2002

José Fernando Martirena Hernández Solid Fuel Block from Waste Biomass in Cuba October 2002

Emma George A Comparison of Wood Burning Cookstoves for Uganda, August 2002

Damon Ogle Rocket Stoves - Controlling Draft, August 17, 2002

Damon Ogle Rocket Stoves In Search of Higher Temperatures, July 2002

Kirk Smith Short Primer on Stove Efficiency, May 4, 2002

Dean Still, ETHOS Website,

Engineers in Technical, Humanitarian Opportunities of Service, April 2002

Evans Kituyi Bioenergy Africa, February 2, 2002


International Conference on Biomass-based Fuels and Cooking Systems, (BFCS-2000): A Report, Dr. Priya Karve

A few images from the conference.

Contributions from some of the Stoves mailing list's participants
Most were submited as an aid to discussions which occured on the list.

Paul S. Anderson
Grant Ballard-Tremeer
Mike Bess
Richard Boyt
Dale Costich
Rogerio Carneiro de Miranda
Crispin Pemberton-Pigott
Elsen Karstad
Priyadarshini Karve
Evans Kituyi
Auke Koopmans
José Fernando Martirena Hernández
Alex English
Jeff Forsell
Emma George
Stephen Gitonga
John Gulland
Dr P.D. Grover
Damon Ogle
Don O'Neal
Matthew Owen
Krishna Prasad
Tom Reed
Dr Jury Judkevitch Melessaw Shanko
Kirk Smith
Richard Stanley
Dean Still
Robert Van Buskirk
Peter Verhaart

Paul S. Anderson


Grant Ballard-Tremeer


Mike Bess


Richard Boyt


Rogerio Carneiro de Miranda


Crispin Pemberton-Pigott


Alex English


Jeff Forsell


Emma George


Stephen Gitonga


John Gulland

  • John Gulland's Visit to Honduras (Jan 6/1999)[Missing]

Dr P.D.Grover


Andrew Heggie


Dr Jury Judkevitch


Elsen Karstad


Priyadarshini Karve


Evans Kituyi


Auke Koopmans


Jose Fernando Martirena Hernandez


Damon Ogle


Don O'Neil


Matthew Owen


Krishna Prasad


Tom Reed


Melessaw Shanko


Kirk Smith


Richard Stanley

Agro Residue Fuel Briquettes, (May 12, 2001)

Dean Still


Robert Van Buskirk


Peter Verhaart


Links

Chambers Stoves

_________________________________________________________________________________

Thanks to Alex English for creating this site. Edited October 13, 2002 by Tom Miles